Familien aufgepasst: Doppelhaushälfte in Ludwigshafen´s bester Lage
- 488.000 €
- 488.000 €
Übersicht
- Doppelhaushälfte
- 3
- 1
- 153 m²
- 1999
Beschreibung
Diese moderne Doppelhaushälfte erstreckt sich über vier Etagen (KG, EG, OG, DG) und bietet ein komfortables Wohnen in bester Lage.
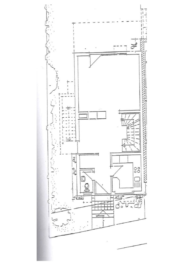
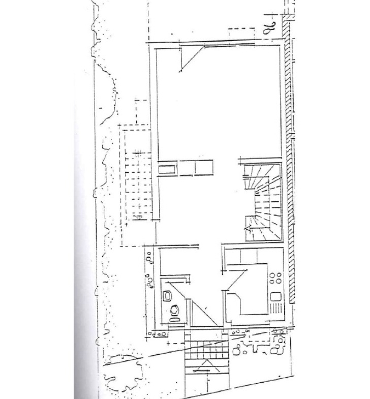
Das Erdgeschoss empfängt Sie mit einem praktischen Eingangsbereich. Von hier aus gelangen Sie in die Küche und in das separate Tageslicht-WC.
Über den Eingangsbereich erreichen Sie das Herz der Immobilie:
der offene und helle Wohn- und Essbereich mit Zugang zur überdachten Terrasse. Hier können Sie schöne Stunden mit der Familie verbringen und bestens Besuch empfangen.
Über die Terrasse gehen Sie auch in den Garten und zur Garage.
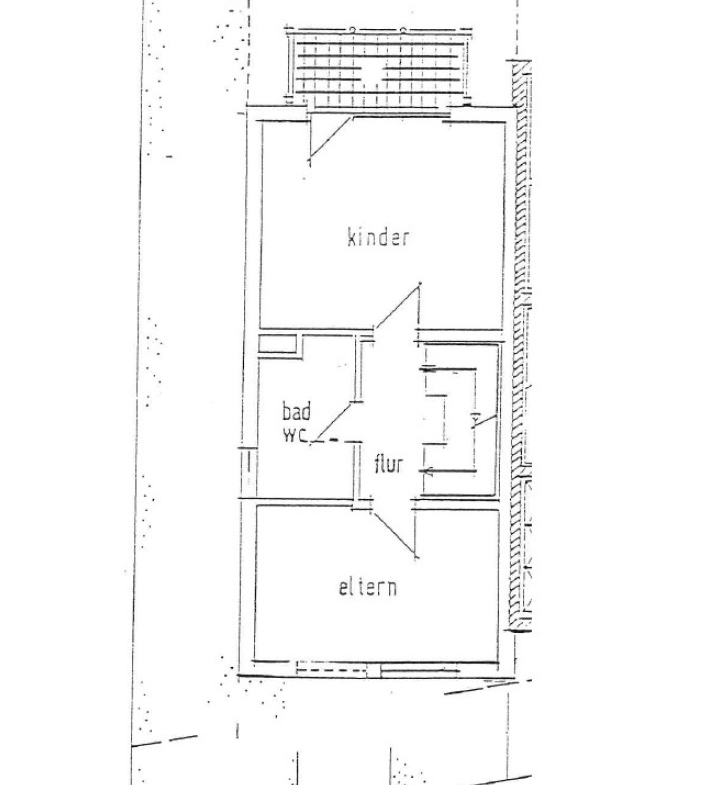
Eine offene Holztreppe führt Sie in die obere Etage, zu zwei Schlafzimmern und einem Tageslichtbad mit Dusche und Badewanne.
Eines der beiden Schlafzimmer verfügt übereinen großen Balkon mit toller Aussicht.
Ein weiteres Highlight ist das großzügig ausgebaute Dachgeschoss. Dieses bietet Platz über die
volle Etage und ist sehr flexibel nutzbar. Bei Bedarf besteht z.B. die Möglichkeit, ein zweites Zimmer abzutrennen.
Von hier erreichen Sie über eine separat ausziehbare Treppe den Dachspeicher. Dieser ist isoliert und nicht ausgebaut. Vor allem überzeugt er durch seinen großzügigen Stauraum.
Das Haus ist unterkellert und hat einen zusätzlichen, sehr praktischen Kellereingang, der Garage, Keller und Zugang über die Frontseite des Grundstücks miteinander verbindet. Sie können beispielsweise Ihre Einkäufe auf direktem Weg von der Garage in den Keller bringen.
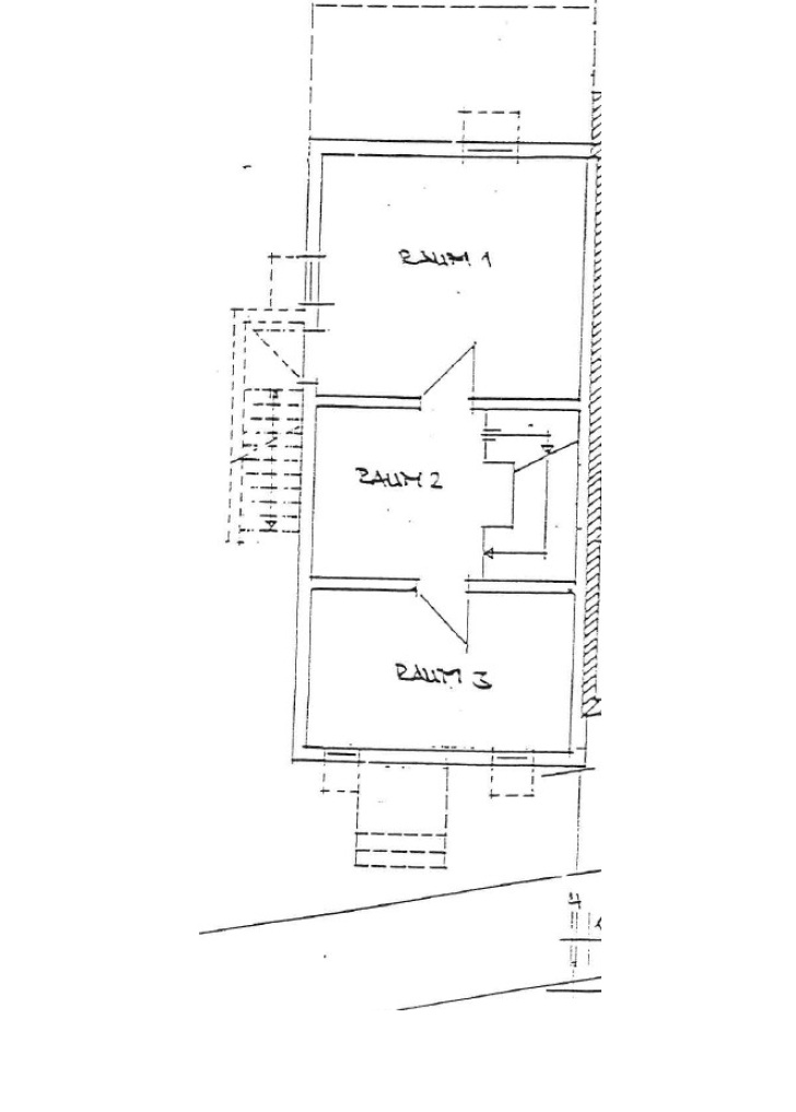
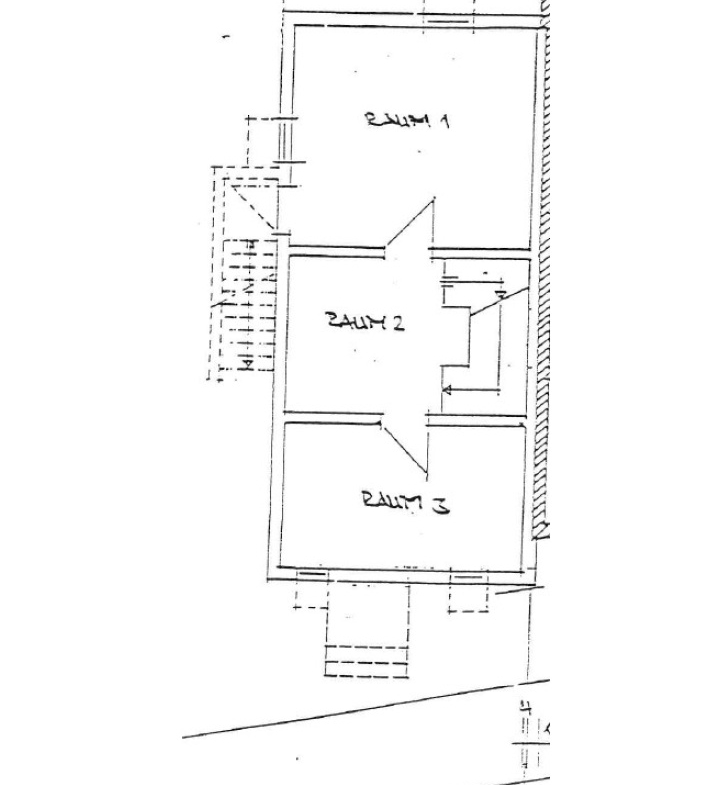
Der große Keller gliedert sich in drei Bereiche (Technikraum, Hobbyraum und offener Kellerbereich). Er bietet sehr viel Stauraum und kann zusätzlich flexibel als Büro, Gästezimmer oder Hobbyraum
genutzt werden.
Gerne präsentieren wir Ihnen diese Immobilie bei einer gemeinsamen Besichtigung.
Wir freuen uns auf Ihre Anfrage und einen Besichtigungstermin mit Ihnen!
Die Doppelhaushälfte befindet sich in ruhiger und familienfreundlicher Wohnlage in Ludwighafen´s beliebtem Stadtteil Oggersheim Melm.
Die Umgebung zeichnet sich durch eine gepflegte Nachbarschaft mit überwiegend Ein- und Zweifamilienhäusern aus und bietet eine ideale Kombination aus urbanem Komfort und naturnahem Wohnen.
Oggersheim gehört zu den begehrtesten Wohnlagen Ludwigshafens. Einkaufsmöglichkeiten des täglichen Bedarfs, Bäckereien, Apotheken sowie Ärzte befinden sich in unmittelbarer Nähe. Auch Kindergärten, Grund- und weiterführende Schulen sind schnell erreichbar, was die Lage besonders attraktiv für Familien macht.
Die Verkehrsanbindung ist hervorragend: Die nächste Straßenbahnhaltestelle ist fußläufig in wenigen Minuten erreichbar und bietet eine schnelle Verbindung in die Ludwigshafener Innenstadt sowie nach Mannheim. Mit dem Auto erreichen Sie die B9, B44 und die A650 in wenigen Minuten – ideal für Pendler.
Für Erholung und Freizeit stehen zahlreiche Grünflächen, Spielplätze sowie das Naherholungsgebiet Maudacher Bruch zur Verfügung. Auch sportliche Aktivitäten kommen nicht zu kurz – Vereine, Fitnessstudios und Sportanlagen sind in der Umgebung vorhanden.
– doppelt verglaste Kunststofffenster
– überdachte Terrasse
– separates Tageslicht-WC
– Solarmodule zur Stromerzeugung
– Einbauküche
– Treppenlift
– offene Holztreppe
– Balkon
– Tageslichtbad mit Wanne & Dusche
– Gasheizung auf dem Dachspeicher
– isoliertes Dach
– Tageslichtfenster im Keller
– separater Kellerzugang
– Garage mit separater Tür und Zugang zum Grundstück
Immobilien Dokumente
Adresse
Auf Google Maps öffnen-
Stadt: Ludwigshafen
-
PLZ: 67071
-
Land: Deutschland
Details
Aktualisiert am Oktober 21, 2025 bei 12:01 a.m.-
Objekt ID HZ2036 VK
-
Preis 488.000 €
-
Objekt Größe 153 m²
-
Grundstücksfläche 269 m²
-
Schlafzimmer 3
-
Räume 4
-
Badezimmer 1
-
Garagengröße 1 Autostellplatz
-
Baujahr 1999
-
Objekt Typ Doppelhaushälfte
-
Objekt Status Zu Verkaufen
Zusätzliche Angaben
-
Preise zuzüglich Mehrwertsteuer nein
-
Käuferprovision 3,57 % inkl. 19 % MwSt.
-
Anzahl Garagenstellplätze 1
-
Wohnfläche 153,95 m²
-
Nutzfläche 50,9 m²
-
Separate WCs 1
-
Wohn- und Schlafzimmer 4
-
Befeuerung Gas
-
Zustand gepflegt
Energieausweis
-
Energieeffizienzklasse: D
-
Endenergieverbrauch: 117,50 kWh/(m²*a)
- A+
- A
- B
- C
- 117,50 kWh/(m²*a) | Energieklasse DD
- E
- F
- G
- H














