Moderne DHH mit Wohlfühlcharakter Hier trifft hoher Komfort auf energieeffizientes Wohnen

  • 619.000 €
77815 Bühl
Zu Verkaufen

Moderne DHH mit Wohlfühlcharakter Hier trifft hoher Komfort auf energieeffizientes Wohnen

77815 Bühl
  • 619.000 €

Übersicht

Objekt ID: HZ1957/DHH 1 VK
  • Doppelhaushälfte
  • Objekt Typ
  • 168
  • 2026
  • Baujahr

Beschreibung

In attraktiver Wohnlage von Bühl-Oberbruch entstehen zwei moderne Doppelhäuser, die durch ihre zeitgemäße Architektur, eine durchdachte Raumaufteilung und eine hochwertige Ausstattung überzeugen. Die Umgebung in Verbindung mit einer gut ausgebauten Infrastruktur macht dieses Neubauprojekt besonders interessant für Familien und Paare, die stadtnah und dennoch im Grünen leben möchten.

Offenes Wohnkonzept im Erdgeschoss
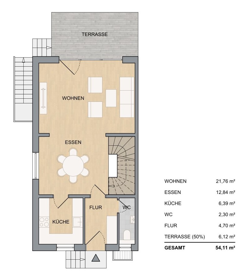
Im Erdgeschoss erwartet Sie ein großzügiger, lichtdurchfluteter Wohn- und Essbereich mit bodentiefen Fenstern und direktem Zugang zur Terrasse. Die offene Raumgestaltung schafft eine moderne, einladende Atmosphäre. Die angrenzende Küche lässt sich individuell und funktional planen. Ein separates Gäste-WC rundet das Raumangebot auf dieser Etage ab.

Platz für die ganze Familie im Obergeschoss
Das Obergeschoss bietet ein Elternschlafzimmer sowie zwei weitere Zimmer, die je nach Lebenssituation flexibel als Kinder-, Gäste-, Schlaf- oder Arbeitszimmer genutzt werden können. Das Tageslichtbadezimmer verfügt über eine bodengleiche Dusche mit Edelstahlrinne, eine Badewanne, ein Doppelwaschbecken sowie ein wandhängendes WC mit Softclose-Funktion. Die Sanitärausstattung umfasst moderne Markenprodukte namhafter Hersteller.

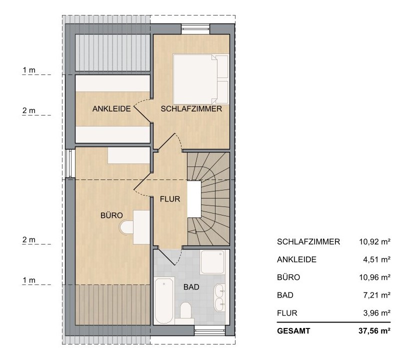
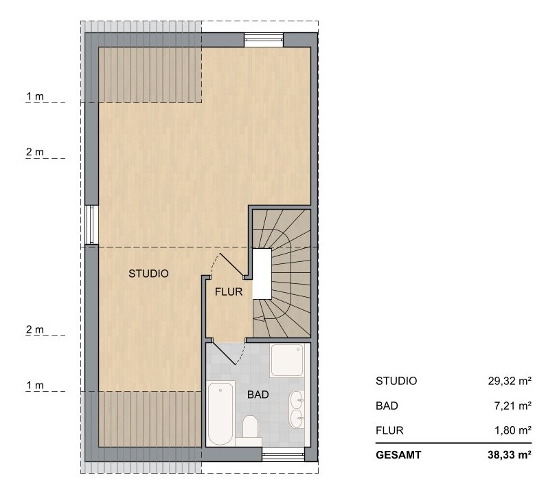
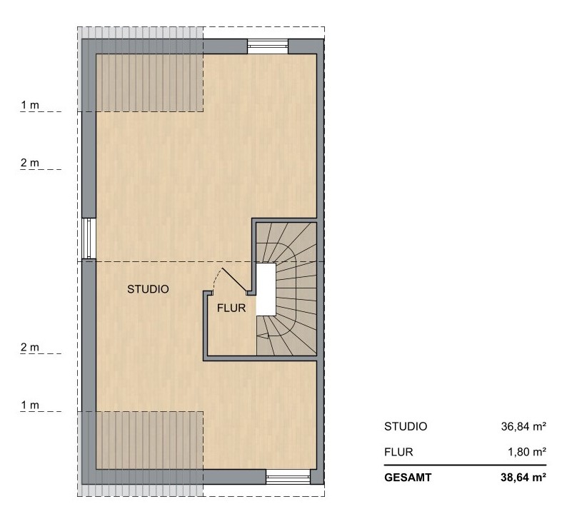
Vielfältige Möglichkeiten im Dachgeschoss
Ein besonderes Highlight ist das individuell gestaltbare Dachgeschoss. Käufer haben die Wahl zwischen drei attraktiven Grundrissvarianten:

Variante 1: Großzügiges Studio mit vielfältigen Nutzungsmöglichkeiten

Variante 2: Studio mit zusätzlichem Badezimmer – ideal für Gäste oder größere Haushalte

Variante 3: Separate Wohneinheit mit Schlafzimmer, Ankleide, weiterem Zimmer und eigenem Bad
Der Innenausbau selbst (z. B. Böden, Wände, Bäder) ist im Dachgeschoss nicht im Leistungsumfang enthalten und kann individuell von Ihnen geplant und umgesetzt werden.

Zusätzlicher Raum im Untergeschoss
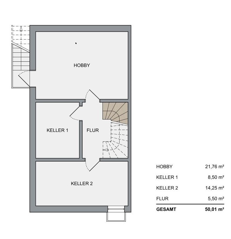
Jede Doppelhaushälfte ist voll unterkellert. Neben einem geräumigen Hobbyraum mit großzügigen Fensterflächen stehen zwei weitere Kellerräume zur Verfügung – Ein Vorratsraum, welcher ideal als Lagerfläche dient, sowie ein Technikraum, welcher zusätzlich als Waschküche dient.

Wohnen mit Wohlfühlfaktor
Jede Haushälfte verfügt über einen eigenen Garten mit angrenzender Terrasse – ideal für entspannte Stunden im Freien, sei es bei einer Tasse Kaffee in der Morgensonne oder beim Grillabend mit Familie und Freunden. Das Wohnumfeld bietet Erholung, Lebensqualität und Raum zur persönlichen Entfaltung.

Individuelle Gestaltung möglich
Je nach Baufortschritt sind Grundrissänderungen möglich – so können Sie Ihre eigenen Vorstellungen und Wünsche in die Planung einbringen.

Geplanter Bauablauf
Der Beginn der Rohbauarbeiten ist für Ende 2025 vorgesehen. Die Fertigstellung des Gesamtprojekts ist für Frühjahr 2027 geplant.

Weitere Informationen
Der Ausbaustandard kann in Absprache mit dem Bauträger individuell abgestimmt werden. Gerne stellen wir Ihnen auf Wunsch weitere Unterlagen zur Verfügung.

Das Objekt befindet sich im idyllischen Bühler Ortsteil Oberbruch, einer charmanten Wohnlage inmitten der rheinischen Tiefebene. Nur rund 7 km vom Stadtzentrum Bühl entfernt, bietet Oberbruch eine perfekte Kombination aus ländlicher Ruhe und hervorragender Verkehrsanbindung: Die Autobahn A5 sowie die B3 sind in wenigen Minuten erreichbar.
Eingebettet zwischen Feldern, Streuobstwiesen und mit freiem Blick auf das Schwarzwaldvorland, überzeugt der Ort durch seine naturnahe Umgebung und ein aktives Dorfleben. Zahlreiche Rad- und Wanderwege führen durch die Umgebung und laden zur Naherholung ein.
Ein Highlight in unmittelbarer Nähe ist der Oberbrucher Baggersee – mit Sandstrand, Spiel- und Sportflächen, Campingbereich und Wasserrutsche ein beliebtes Freizeitareal für Jung und Alt.
Oberbruch verfügt über eine gewachsene Dorfgemeinschaft, eine historische Kapelle, ein Feuerwehrhaus und eine eigene Verwaltungsstelle. Regionale Einkaufsmöglichkeiten sowie Kindergärten und Schulen befinden sich in den angrenzenden Stadtteilen und im nahegelegenen Bühler Zentrum.
Die ruhige, familienfreundliche Lage in Kombination mit naturnahen Freizeitmöglichkeiten und einer sehr guten Anbindung macht Oberbruch zu einem idealen Wohnstandort für alle, die ländliche Lebensqualität mit urbaner Nähe verbinden möchten.

– Parkettboden aus Naturdielen und Fliesen
– 3-fach-verglaste Kunststofffenster
– elektrische Rollläden
– Fußbodenheizung
– Doppelgarage oder Einzelgarage (je nach Einheit) mit Stromanschluss und Leerrohr als Vorrüstung für eine Wallbox (E-Mobilität) in der Garage
– Klingel- und Videosprechanlage
– zentrale Luft-Wasser-Wärmepumpe
– Photovoltaikanlage

Kellergeschoss: Im Keller befinden sich 2 Räume, welche sich als Hobby-, Fitness- oder Partyraum sowie zur Lagerung nutzen lassen, sowie ein großzügiger Technikraum mit integrierter Waschküche.

Erdgeschoss: Vom Flur aus gelangen Sie direkt in den Wohn- und Essbereich sowie zum Gäste-WC. Vom Wohn- und Essbereich aus gelangen Sie wiederum in die Küche sowie auf die Terrasse.

Obergeschoss: Hier befinden sich das Schlaf-, erste und zweite Kinderzimmer sowie das Badezimmer.

Dachgeschoss: Die Grundrissgestaltung für das Dachgeschoss haben Sie in der Hand und kann nach Ihren Vorlieben gewählt werden.
Variante 1: Studio.

Variante 2: Studio mit Badezimmer.

Variante 3: Schlafzimmer mit Ankleideraum, weiteres Zimmer sowie Badezimmer.

Energieeffizienz

  • Energieausweis-Art: Bedarf
  • Energieausweis gültig bis: 14.08.2035
  • Endenergiebedarf: 17,60 kWh/(m²*a)
  • Primärenergieträger: Strom
  • Energieeffizienzklasse: A+
  • Baujahr (Energieausweis): 2025
  • Energieausweis-Jahrgang: ab Mai 2014
  • Energieausweis-Gebäudeart: Wohngebäude

  • Stadt Bühl
  • PLZ 77815
  • Land Deutschland

Details

Aktualisiert am Oktober 8, 2025 bei 12:01 a.m.
  • Objekt ID: HZ1957/DHH 1 VK
  • Preis: 619.000 €
  • Objekt Größe: 168 m²
  • Grundstücksfläche: 207 m²
  • Räume: 5
  • Garagengröße: 2 Autostellplätze
  • Baujahr: 2026
  • Objekt Typ: Doppelhaushälfte
  • Objekt Status: Zu Verkaufen

Zusätzliche Angaben

  • Preise zuzüglich Mehrwertsteuer: nein
  • Käuferprovision: provisionsfrei
  • Anzahl Garagenstellplätze: 2
  • Stellplatzkaufpreis (Garage): 35.000 €
  • Wohnfläche: 168,54 m²
  • Befeuerung: Elektro
  • Zustand: Erstbezug
  • Immobilie ist verfügbar ab: geplante Fertigstellung: Ende 2026

Grundrisse

image

Beschreibung:

image

Beschreibung:

image

Beschreibung:

image

Beschreibung:

image

Beschreibung:

image

Beschreibung:

Energieausweis

  • Energieeffizienzklasse: A+
  • Endenergieverbrauch: 17,60 kWh/(m²*a)
  • 17,60 kWh/(m²*a) | Energieklasse A+
    A+
  • A
  • B
  • C
  • D
  • E
  • F
  • G
  • H

Kontakt Informationen

Anzeigen ansehen

Anfrage zu diesem Objekt stellen

Objekte vergleichen

Vergleichen
Patrick Häusler
  • Patrick Häusler