4-Zimmerwohnung in Rastatt Familiengerechte Raumzuschnitte in “fast” zentraler Lage
- 255.000 €
- 255.000 €
Übersicht
- Etagenwohnung
- 3
- 1
- 95 m²
- 1985
Beschreibung
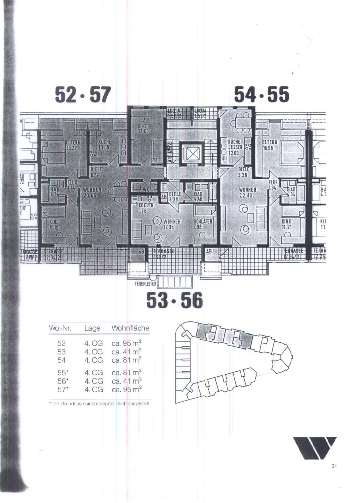
Diese großzügige 4-Zimmerwohnung befindet sich in einem gepflegten Mehrfamilienhaus in zentraler Lage von Rastatt und ist aktuell noch vermietet. Die Raumaufteilung umfasst ein Wohnzimmer mit Zugang zu einem begehbaren Balkon, der in den Innenhof ausgerichtet ist, sowie ein Schlafzimmer ebenso mit einem Balkon. Es gibt zwei Kinderzimmer, eine gemütliche Küche und ein innenliegendes Bad. Der Flur verbindet alle Räume und dient als zentrale Anbindung.
Die Lage überzeugt durch zentrale Infrastruktur in Rastatt: Einkaufsmöglichkeiten, Ärzte und der ÖPNV befinden sich direkt vor der Haustür, wodurch eine gute Anbindung an umliegende Städte gewährleistet ist. Die Wohnung ist besonders attraktiv für Kapitalanleger aufgrund der bestehenden Vermietung. Momentan vermietet für 850,- EUR mtl. Die beiden Balkone bieten flexible Nutzungsmöglichkeiten, sowohl als Erholungsbereich als auch für Abendsonne im Innenhof-Balkon. Ruhige Innenhofausrichtung trotz zentraler Lage bietet eine angenehme Wohnatmosphäre.
Die Barock- und Residenzstadt Rastatt liegt in der Rheinebene zwischen Karlsruhe und Baden-Baden. Die große Kreisstadt zwischen Schwarzwald und Vogesen grenzt an Murg und Rhein und bietet viele Freizeitmöglichkeiten ob in freier Natur, kulturell oder im regen Vereinsleben. Das Haus steht in einer sehr guter Wohn- und Geschäftslage. Hier finden Sie viele Einkaufsmöglichkeiten ebenso Ärzte, Kindergarten und Schulen. In fußläufiger Entfernung erreichen Sie die öffentlichen Verkehrsmittel, sowie den Bahnhof. Über die B 3/36 erreichen Sie schnell die BAB 5. Auch die Nähe zum Baden-Airpark sowie das benachbarten Elsass sind nennenswert.
TG-Stellplatz
– Gaszentralheizung
– teilweise Fliesen, Granit und Laminat
– innenliegendes Badezimmer mit Wanne sowie Anschluss für Waschmaschine und Trockner
SAT-Anschluss
Fahrradkeller
Aufzug
– Eingangsbereich mit Zugang zu den einzelnen Räumlichkeiten
– Küche
– Wohnzimmer
– Schlafzimmer
– 2 Kinderzimmer
– innenliegendes Badezimmer
– Gäste-WC
– 2 Balkon
– Keller
– TG-Stellplatz
Adresse
Auf Google Maps öffnen-
Stadt: Rastatt
-
PLZ: 76437
-
Land: Deutschland
Details
Aktualisiert am Oktober 23, 2025 bei 12:01 a.m.-
Objekt ID HZ1413 VK
-
Preis 255.000 €
-
Objekt Größe 95 m²
-
Schlafzimmer 3
-
Räume 4
-
Badezimmer 1
-
Baujahr 1985
-
Objekt Typ Etagenwohnung
-
Objekt Status Zu Verkaufen
Zusätzliche Angaben
-
monatl. Betriebs-/Nebenkosten 654,08 €
-
Preise zuzüglich Mehrwertsteuer nein
-
Käuferprovision 2,38 % inkl. 19 % MwSt.
-
Anzahl TG-Stellplätze 1
-
Wohnfläche 95 m²
-
Separate WCs 1
-
Befeuerung Gas
-
Immobilie ist verfügbar ab nach Absprache
Ausstattung
Energieausweis
-
Energieeffizienzklasse: C
-
Endenergieverbrauch: 97,00 kWh/(m²*a)
- A+
- A
- B
- 97,00 kWh/(m²*a) | Energieklasse CC
- D
- E
- F
- G
- H











